Site Plan Services
Get Your Site Plan Fast and Stress-Free
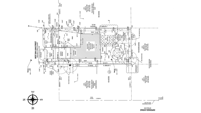
From simple residential lots to complex commercial developments — we provide everything you need to get your site plan approved.
From simple residential lots to complex commercial developments — we provide everything you need to get your site plan approved.
Upload a survey, sketch, or even just your address — we’ll review your zoning and property details to get started.
Our licensed professionals create a code-compliant, ready-to-submit site plan, tailored to your city or county’s requirements.
We deliver a clean, digital package that meets your local building department’s checklist for fast approval.
12 August 2023

Hoang was very kind from the beginning, always patient and paying attention to de- tails, very responsive and friendly. He's very polite all the time and professional. Very happy to find him because I definitely .will hire him for my future projects.
Julio Paguada
11 November 2023

Hoang delivered an exceptional piece of work, showcasing impeccable attention to- .detail and top-notch professionalism Working with him was a breeze he understood the project deeply and communicated fluently, ensuring timely .delivery. A truly fantastic experience.
Cheriece Davidson
6 November 2023

Plans were delivered lightning fast and communication was excellent. Willing to do revisions as needed to make sure .everything meets requirements.
Robspencemd
16 January 2024

Without question, Hoang is one of the most profession- al, knowledgeable and talented engineers I have worked with in the past 30 years. He has always been available to work through the design of my projects and resolve any issues regardless of complexity with a high level of comprehension. He continues to exceed my expectations in communication and time constraints. Would I hire him again? Without hesita- !tion.
Anthony Gimenez
16 November 2024

Very quick to respond, professional service. I have nothing but respect and gratitude for the level of care shown my project. Went above and beyond my expectations and worked tirelessly to help plan a container home addition to an existing farmhouse, and they were able to accommodate all reasonable request. Would highly recommend to contractors or homeown- .ers looking to plan projects themselves.
Chris Tidder
20 October 2024

Hoang was extremely helpful and responsive with in seconds. While there was surprisingly little dialogue for a project of this scope, the work was completed ahead of time and correct- ly. Hoang clearly has a profound understanding of his work and the needs of permitting offices. I will recommend this service and will be using .again for future projects.
Davegrech
25 November 2023

Hoang was fantastic! Delivered exactly what I was looking for well before schedule and his communication was excellent. He was able to make all the revisions I needed until I was satisfied. Will 1000% recom- .mend and I will surely be using him again.
London Ross
22 July 2024

This was the last piece of a four-part project, design, structural analysis, permitting, and trou- bleshooting during the construction of a multi-sto- ry deck of 1500 sq ft. Hoang was helpful and professionally competent throughout the whole process. It was a pleasure working with him. I will definitely connect with him on my next project.
Stephen Tetra